When creative ideas get translated into design proposals, we gladly assist with knowledge of the features and benefits of our products. Our broad product line means many opportunities for environments with unique design.
Design Consultancy from Day One
Our experienced team are always on hand and happy to provide assistance from day one. Whether it be discussing key design considerations, advising on the most suitable products or proposing innovative solutions to any design issues, we use our experience to help ensure that sports equipment is an integrated part of the final design of your facility.
Product Advice
By listening to your needs we can help you work our your requirements and advise on the best product(s) for you. Our wide range of innovative products and experience gives us the ability to meet even the most challenging of requirements and our commitment to innovation means that we are continually introducing new and exciting products to our range.
Custom Solutions
Having our own production facilities guarantees the best possible quality and helps to ensure on-time delivery, as well as bespoke solutions for both indoor and outdoor projects. The artificial grass products are manufactured at our factory in Alajärvi, Finland.
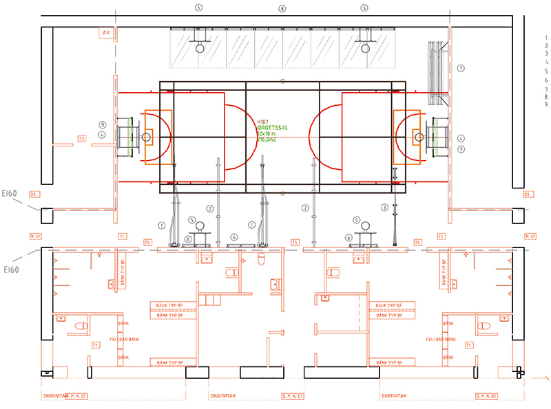
Layout Proposals and Advice
We can provide full CAD Sports Equipment layout proposals for specific projects. Furthermore, we have a vast library of Autocad drawing files for our products that you can 'drop' into your own drawings.
BIM Objects
We are delighted to now also offer BIM objects for selected products. Please contact us for more information.
Company Introduction Seminars
If you would like to find out more about what we can offer, then why not ask about booking one of our company introduction seminars? In the seminars, we give a presentation on our company and showcase some of the products and services that we can provide. If you're working on a specific project or in a specific sector we can tailor our presentation around this and will be happy to discuss your project(s) in more detail.